コムハウジング(賃貸) > 株式会社コムハウジングのスタッフブログ記事一覧 > 【賃貸おすすめ】最上階1フロア独占!屋上ルーフテラス付き!

【賃貸おすすめ】最上階1フロア独占!屋上ルーフテラス付き!

OTG初台


耐震・耐火性に優れたへーベルメゾンの築浅物件!

最上階1フロア独占!独立性の高い戸建てライクなお部屋です!



21.5万円

敷金1ヶ月 礼金2ヶ月 共益費3,000円


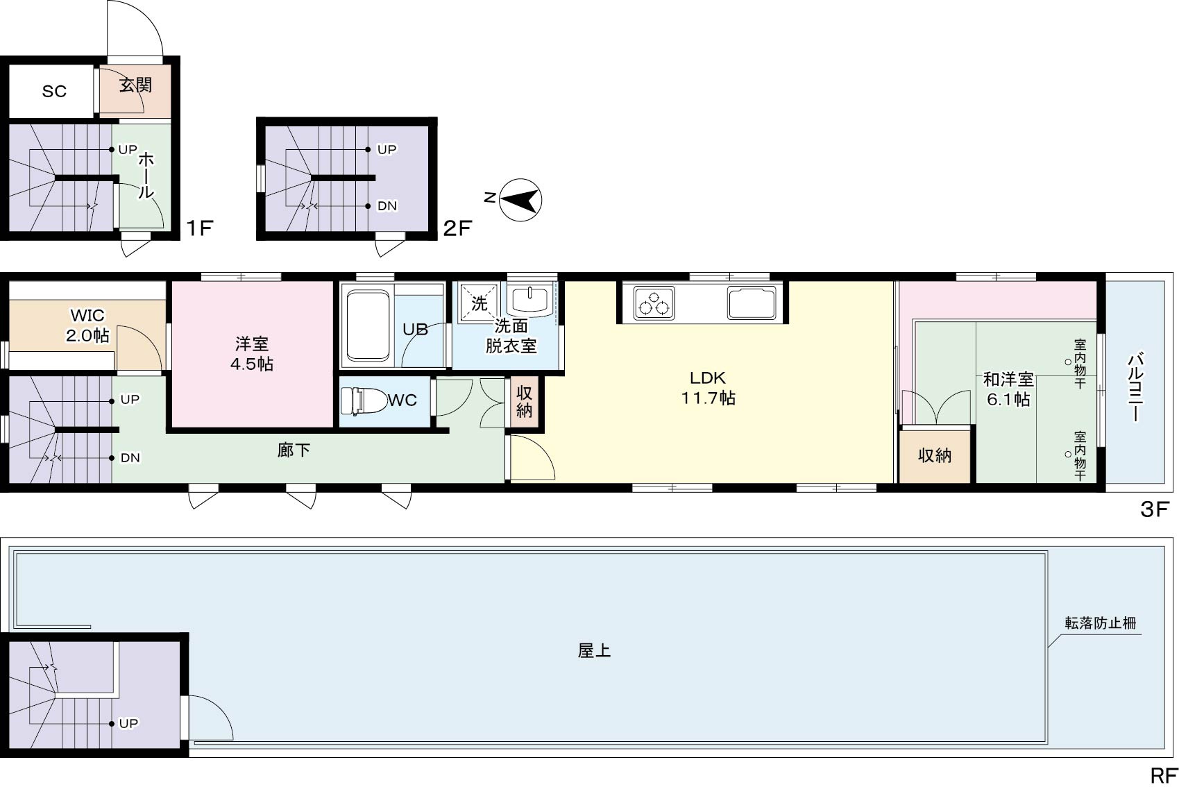
2LDK+ルーフテラス
80.11㎡

2019年12月築

東京都渋谷区本町2-45-8
・京王新線「初台」駅 徒歩6分
・都営大江戸線「西新宿五丁目」駅 徒歩10分
・JR山手線他「新宿」駅 徒歩20分

◆お子さん可 ◆2人入居可 ◆兄弟姉妹可
◆採光良好 ◆眺望良好 ◆最上階 ◆通風良好 ◆角部屋

◇宅配ボックス ◇防犯カメラ(ALSOK) ◇浴室乾燥機
◇ウォークインクローゼット ◇エアコン3基
◇バス・トイレ別 ◇追焚風呂 ◇ペアガラス
◇独立洗面台 ◇床下収納 ◇室内物干 ◇BSアンテナ
◇ウォシュレット ◇モニタ付インターホン ◇防犯シャッター
◇室内洗濯機置場 ◇シャンプードレッサー ◇自転車置場相談
◇グリル付3口ガスコンロ















]
---------------------------
LIFE INFORMATION
---------------------------
まいばすけっと渋谷本町2丁目・・・徒歩1分
ファミリーマート渋谷本町店・・・・徒歩1分
フレスコベンガベンガダイヤ店・・・徒歩2分
不動通り商店街・・・・・・・・・・徒歩1分
東京オペラシティタワー・・・・・・徒歩3分
渋谷本町二郵便局・・・・・・・・・徒歩1分
新宿中央公園・・・・・・・・・・・徒歩6分


お気軽にお問い合わせください!
物件詳細はこちら


≪ 前へ|【賃貸おすすめ】人気の代々木4丁目アドレスの新築物件!最上階1フロア独占!   記事一覧   【賃貸おすすめ】最上階南東向き、3方向角部屋!使い勝手の良い2DK!|次へ ≫

トップへ戻る